You may not imagine this, however I used to be a civil engineer earlier than I grew to become an search engine marketing content material specialist.
I’ve at all times had a ardour for civil engineering, which led me to check the topic and apply its ideas to actual tasks for 4 years. Nonetheless, throughout my time in school, the COVID-19 pandemic hit, and I discovered myself drifting away from the sphere and exploring a special profession path.
However this is the factor: my years of research taught me the significance of utilizing the finest civil engineering design software program for profitable venture execution. From the primary sketch on paper to the ultimate building, these instruments made complicated designs and calculations way more manageable.
My background as a civil engineer offers me a novel perspective on the challenges and desires professionals face within the discipline.
6 finest civil engineering design software program: My picks for 2025
-
ZWCAD: Finest for AutoCAD compatibility and superior 2D/3D drafting
Affords seamless AutoCAD-like expertise with highly effective drafting instruments. (one-time license charge: $899) -
MicroStation: Finest for complicated 3D modeling and BIM tasks
Very best for large-scale infrastructure with robust 3D and BIM capabilities. (USD 2,284/12 months) -
GeoHECRAS: Finest for hydraulic modeling
Extremely efficient for river evaluation and floodplain mapping. (pricing accessible on request) -
GeoHECHMS: Finest for numerous hydrological eventualities
Delivers flexibility and accuracy in hydrology and watershed modeling. (pricing accessible on request) -
Civil 3D: Finest for street, grading, and utility design
Streamlines civil design and documentation workflows. ($350/month) -
OpenRoads Designer: Finest for complete roadway design and evaluation
All-in-one answer for roadway engineering and sophisticated transportation tasks. (USD 6,481/12 months)
* These civil engineering design software program are top-rated of their class, in keeping with G2’s Winter 2025 Grid Stories. I’ve added their standout options and pricing data for simple comparability.
This information will show you how to discover the proper software program to streamline your workflow, optimize your designs, and make sure that your tasks meet the best requirements of high quality and security.
My prime 6 finest civil engineering design software program suggestions for 2025
Civil engineering design software program is a important device used to plan, design, and optimize infrastructure tasks. The worldwide software program market is projected to succeed in $4.34 billion by 2033, rising at a CAGR of about 7.38%.
Whether or not it’s for designing roads, bridges, water programs, or buildings, these instruments present the muse for creating complicated buildings that help fashionable society.
Past primary structure creation, the very best civil engineering design software program goes above and past by providing highly effective instruments for structural calculations, simulation capabilities, and building venture administration. These superior options make sure that engineers can’t solely visualize their designs but in addition consider them for security, effectivity, and feasibility earlier than building begins.
On this article, I’ll spotlight the standout options of the very best civil engineering design instruments and share how they assist deal with complicated engineering issues with larger precision and ease.
How did I discover and consider the very best civil engineering design software program?
I evaluated the very best civil engineering design software program to create, optimize, and handle infrastructure tasks. To deepen my understanding, I additionally linked with civil engineers to study their particular challenges and necessities when utilizing these instruments for designing roads, bridges, and buildings.
Moreover, I reviewed G2 person suggestions and G2’s Grid Stories to assemble insights on every device’s options, ease of use, and general worth. By combining professional enter and person opinions, I’ve curated a listing of the very best civil engineering design software program that can assist you select the fitting device on your venture wants.
All product screenshots featured on this article come from official vendor G2 pages and publicly accessible supplies.
What I regarded for in civil engineering design software program
After I evaluated civil engineering design software program, I targeted on a number of key components that influenced my decision-making course of:
- Person-friendly interface and ease of use: From my expertise, a user-friendly interface can considerably have an effect on how shortly I can adapt to a brand new device. I’ve labored with software program that featured intuitive menus and customizable dashboards. The extra streamlined the interface, the much less time I spent studying find out how to navigate the device, and the extra I might deal with the design work itself. Instruments with drag-and-drop performance had been particularly useful, making it simpler so as to add or take away design components with out having to dig via a number of menus.
- Sturdy structural evaluation: I prioritized software program that supplied each static and dynamic structural evaluation. For complicated tasks like bridges or high-rise buildings, having the potential to carry out finite component evaluation (FEA) was important for detailed structural modeling. The power to simulate how supplies and parts behave beneath numerous forces, similar to wind or seismic hundreds, was one thing I couldn’t compromise on. I additionally discovered that having devices for plastic deformations or fracture mechanics allowed me to foretell structural habits beneath excessive circumstances—an important function for making certain the long-term safety and reliability of designs.
- Compatibility with {industry} requirements and rules: Engaged on designs that wanted to be submitted for regulatory approval made compliance a prime precedence in deciding on design software program. I at all times sought instruments that complied with key regional and worldwide design requirements like Eurocodes, AISC, and IBC. Having built-in automated compliance checks was an enormous time-saver and considerably diminished the prospect of errors throughout the design course of. In my earlier roles, I discovered that software program with these built-in options helped determine discrepancies in opposition to the required requirements early on, thus stopping pricey rework and making certain that tasks stayed inside funds and met all authorized necessities.
- Collaboration and integration options: Since I typically labored in groups, software program that enabled seamless collaboration was a should. I additionally wanted instruments that built-in nicely with constructing data modeling (BIM) platforms for architectural coordination and geographic data programs (GIS) for site-specific evaluation. I valued model management options, as they allowed me to trace design iterations and keep a single, constant model of the venture.
- Highly effective materials and element libraries: During my tasks, I typically relied on complete libraries of standardized supplies and parts, similar to beams, columns, and slabs. I additionally prioritized software program that supplied superior materials varieties, similar to composite or sustainable supplies like recycled concrete. The power to outline particular materials properties, together with yield energy, modulus of elasticity, and thermal growth, was important to make sure correct modeling and dependable design predictions.
- Detailed reporting and documentation: Producing correct and clear experiences was at all times a key a part of my work, whether or not for inner opinions or exterior stakeholder displays. I favored software program that might robotically generate experiences overlaying important facets similar to load evaluation, materials necessities, and value estimations. The power to export these experiences in a number of codecs made sharing findings with shoppers, regulatory our bodies, or different stakeholders a breeze. I additionally discovered that customized report templates had been obligatory to keep up consistency throughout tasks and align with totally different consumer wants.
- Excessive-level computational effectivity: Lastly, having labored on large-scale tasks that required detailed simulations, I knew that efficiency was a important issue. Software program able to parallel processing or using cloud computing assets for demanding duties like FEA and hydraulic modeling saved me loads of time. The instruments I relied on wanted to have the ability to deal with giant datasets with out slowing down or crashing, particularly for time-sensitive tasks. The extra effectively the software program processed complicated simulations, the faster I might transfer on to different important facets of the venture, serving to me meet tight deadlines.
I chosen software program that balances all these components. My sensible expertise guided my deal with these key options as a result of I understand how a lot they’ll impression a venture’s success.
The checklist beneath incorporates real person opinions from our greatest civil engineering design software program class web page. To qualify for inclusion within the class, a product should:
- Present customers with the flexibility to switch 3D primitives
- Provide primary drawing instruments like strains, circles, and polygons
- Allow customers to visualise their buildings in 3D
This information has been pulled from G2 in 2025. Some opinions have been edited for readability.
1. ZWCAD: Finest for AutoCAD compatibility and superior 2D/3D drafting
ZWCAD proved to be a reliable device for 2D drafting, particularly when dealing with each easy layouts and extremely detailed engineering drawings. From my overview of G2 person suggestions, I’ve seen that ZWCAD’s strong efficiency beneath heavy workloads is a key energy. Many customers reward its skill to handle a number of tasks with out delays, making it a dependable alternative for high-pressure environments the place pace and stability are essential.
One function that G2 customers typically name out as a significant benefit is ZWCAD’s compatibility with the DWG file format. This interoperability eliminates the widespread points that usually happen when collaborating throughout totally different CAD instruments, similar to the necessity for back-and-forth codecs. Based mostly on what I’ve seen, reviewers recognize how this compatibility streamlines communication, notably amongst civil engineers working with different disciplines on giant tasks. In line with G2 Knowledge, 93% customers reward its file import options.
One other standout function that I’ve seen obtain loads of reward is the Sensible Plot performance. Many G2 reviewers spotlight how this device provides exact management over printing settings similar to scale, orientation, and paper dimension, which helps cut back errors in closing submissions. This appears to be particularly useful for professionals on tight deadlines who have to keep away from time-consuming revisions.
The FlexiBlock device additionally continuously seems in person suggestions. G2 reviewers appear to actually recognize how this function allows the creation of customizable blocks for continuously used components. This not solely helps guarantee consistency throughout giant drawing units but in addition reduces redundant work, a profit that customers in collaborative staff environments persistently level out.
For managing giant volumes of drawings, the Sheet Set Supervisor is one other function that stands out in opinions. G2 customers typically point out how this device helps arrange and entry a number of sheets effectively. That is notably valued in infrastructure tasks, the place drawing group can grow to be overwhelming. The construction it gives appears to help higher venture monitoring and coordination throughout groups, which many professionals engaged on large-scale tasks recognize.

Nonetheless, I’ve come throughout some suggestions concerning the dimension tab. Whereas it’s practical and meets most wants, a number of G2 customers have talked about that extra customization choices might make it much more environment friendly. Better management over dimension kinds would assist streamline duties, notably for tasks with distinctive specs; nevertheless, the present setup nonetheless successfully covers customary necessities.
With regards to efficiency, some G2 reviewers have famous occasional slowdowns when working with complicated fashions. Whereas this isn’t a significant difficulty for many customers, optimizing efficiency beneath excessive complexity might enhance effectivity for larger-scale infrastructure tasks. Total, ZWCAD continues to deal with most duties reliably.
Lastly, ZWCAD consists of primary 3D instruments, that are helpful for normal modeling. Some G2 customers have talked about that superior modeling duties could require add-ons, and native help for 3D file codecs, similar to STL, WRL, and STP, could possibly be expanded. Even so, the prevailing 3D performance gives a strong basis for normal engineering workflows.
What I like about ZWCAD:
- I’ve seen loads of reward for ZWCAD’s compatibility with the DWG file format. Many customers report that this function helps remove formatting points when collaborating throughout totally different CAD instruments, making it simpler to work on giant, multidisciplinary tasks.
- One other function that G2 customers typically spotlight is the Sensible Plot performance. From what I’ve gathered, customers recognize its exact management over printing settings, which helps guarantee error-free submissions, particularly when working beneath tight deadlines.
What G2 customers like about ZWCAD:
“ZWcad’s interface is similar to Autodesk software program, which I’ve used my whole life, making it extremely straightforward to make use of. Many of the instructions are the identical, it’s very responsive, and even my .lsp information work seamlessly with out further plugins—simply use APPLOAD, and so they combine completely. I extremely advocate it as a dependable, cost-effective various to CAD software program. I’ve been utilizing it for some time now and haven’t confronted a single difficulty or problem.”
– ZWCAD Overview, Ayron P.
What I dislike about ZWCAD:
- I’ve seen that MicroStation’s interface can really feel a bit dated and has a steep studying curve. A number of G2 reviewers talked about this too, although the customization choices make it highly effective when you get the cease responding of it.
- Transitioning between 2D and 3D views could be cumbersome since a separate 3D seed file is required. A number of G2 customers highlighted this as a workflow slowdown, although the platform nonetheless delivers exact design capabilities as soon as arrange.
What G2 customers dislike about ZWCAD:
“It sometimes crashes with none clear cause, and annotative texts inside blocks don’t show correctly when opened in AutoCAD. Moreover, the icons within the Device Palette change place each time I open this system, which could be irritating. Importing customized device palettes additionally poses a problem, because the icons typically don’t show accurately.”
– ZWCAD Overview, Mackoy S.
2. MicroStation: Finest for complicated 3D modeling and BIM tasks
MicroStation stands out for its skill to deal with each 2D and 3D geospatial design, making it well-suited for infrastructure tasks. From what I’ve seen in G2 opinions, customers recognize its spatial evaluation capabilities, which assist convey real-world context to designs. That is notably necessary in civil engineering, the place exact integration with present infrastructure is essential for profitable planning and execution.
One function that I see getting loads of reward is the linked information atmosphere. Based mostly on suggestions I gathered from G2 customers, this functionality considerably enhances cross-departmental collaboration. It integrates information, functions, and groups inside a single platform, enhancing coordination, notably for geographically dispersed groups. G2 reviewers spotlight how this unified workflow reduces errors and accelerates venture timelines.
I continuously see G2 reviewers spotlight the compatibility with native DGN information and legacy information codecs, similar to DWG and level cloud information. Many customers be aware that this function allows them to seamlessly merge historic venture information with new components, thereby preserving the continuity of long-term or iterative infrastructure tasks. This integration is a significant time-saver for professionals working with each new and legacy information.
One other facet that stands out in G2 suggestions is MicroStation’s information visualization capabilities. Customers continuously point out how the platform permits them to research supplies, prices, and timelines instantly throughout the design. This performance appears to assist anticipate venture dangers early, offering a multi-layered view that helps determine inefficiencies that might in any other case delay supply or enhance prices.

From what I’ve gathered, MicroStation’s interface receives combined suggestions. Whereas the platform provides substantial customization choices, a number of G2 reviewers have famous that the interface seems considerably dated in comparison with newer instruments. The educational curve and preliminary setup can take some effort, however when you grow to be snug, the flexibleness it provides makes it a really highly effective device for infrastructure design.
I’ve learn that a number of reviewers spotlight MicroStation’s stability as a powerful level, even when dealing with giant datasets. On the similar time, the replace cycle could be gradual, with delays in accessing new options or bug fixes. Whereas the updates that do roll out are usually secure, a sooner launch tempo might improve person expertise, although it doesn’t compromise the platform’s reliability.
I’ve seen some customers point out that transitioning between 2D and 3D views requires a separate 3D seed file. Whereas not a significant difficulty, streamlining this course of might save time, particularly for groups continuously switching between design views. Regardless of this, the core performance for each 2D and 3D design stays robust.
Lastly, many G2 reviewers be aware that whereas MicroStation’s 3D design atmosphere is practical and exact, its rendering options aren’t fairly as photorealistic as some competing instruments. That is extra related for presentation-heavy or client-facing work, however the platform nonetheless delivers strong visible outputs appropriate for many infrastructure tasks.
What I like about MicroStation:
- From what I’ve seen in G2 opinions, customers continuously spotlight the linked information atmosphere. This function enhances cross-departmental collaboration by integrating information, functions, and groups inside a single platform, thereby decreasing errors and accelerating venture timelines.
- One standout functionality, in keeping with G2 reviewers, is the compatibility with native DGN information and legacy information codecs. Customers recognize the way it seamlessly merges historic venture information with new components, saving time and preserving continuity in long-term infrastructure tasks.
What G2 customers like about MicroStation:
“I recognize MicroStation’s skill to let you choose an object and carry out a number of actions like transferring, rotating, and scaling with out deselecting it every time. The AccuDraw device is extremely useful when you study its primary instructions. Moreover, when enhancing outdated plan photographs, utilizing Descartes alongside MicroStation makes the method seamless and ideal for picture enhancing.”
– MicroStation Overview, Kevin L.
What I dislike about MicroStation:
- I’ve seen that MicroStation’s interface can really feel a bit dated and has a steep studying curve. A number of G2 reviewers talked about this as nicely, though the customization choices make it highly effective when you get the dangle of it.
- Transitioning between 2D and 3D views could be cumbersome since a separate 3D seed file is required. A number of G2 customers highlighted this as a workflow slowdown, although the platform nonetheless delivers exact design capabilities as soon as arrange.
What G2 customers dislike about MicroStation:
“MicroStation has some drawbacks, like the shortage of key-in instructions much like AutoCAD and a scarcity of logical, intuitive shortcuts. The buttons aren’t at all times clearly labeled, which regularly leads to looking for the instruments. Moreover, the GUI seems outdated, resembling the type of Home windows 98 or XP. Whereas this would possibly optimize processing energy, it’s time to improve to a extra fashionable and user-friendly interface.”
– MicroStation Overview, Kristjan G.
3. GeoHECRAS: Finest for hydraulic modeling
GeoHECRAS is a strong device for hydraulic modeling, particularly within the context of floodplain administration and infrastructure planning. In line with G2 Knowledge, 87% G2 customers worth its Hydrologic and Hydrolic capabilities.
Based mostly on my overview of G2 person suggestions, this software program is especially efficient for simulating water floor profiles in each regular and unsteady move circumstances. Many G2 customers emphasize the significance of this function for real-world functions, similar to bridge crossings, stream restorations, and FEMA floodplain assessments, the place precision is essential.
One function that I see getting loads of reward is the georeferencing device, which permits fashions to align precisely with real-world map coordinates. G2 customers typically emphasize the significance of spatial accuracy in tasks similar to infrastructure placement or flood danger zoning, the place even minor misalignments can result in vital downstream points. This device appears to assist reduce these dangers by making certain exact information alignment.
I continuously see G2 reviewers spotlight how help for 1D, 2D, and hybrid 1D-2D HEC-RAS modeling provides flexibility to the device. This adaptability allows professionals to pick the modeling strategy finest fitted to their venture, whether or not it includes an easy channel or a posh city flood system. In line with customers, this flexibility ensures that hydraulic modeling stays correct with out unnecessarily complicating the method.
Based mostly on suggestions I gathered from G2 customers, there’s loads of love for GeoHECRAS’s integration with GIS platforms. Many customers recognize how simply information could be transferred between GeoHECRAS and GIS instruments, which is important for sustaining consistency throughout platforms. This interoperability helps make sure that the outputs stay dependable and aligned with the newest information sources, decreasing the danger of errors and redundant effort.
One other function that I’ve seen praised is the digital terrain cross-section device. Customers typically spotlight its skill to extract cross-sections instantly from 3D terrain information, which is particularly useful for engineers and planners working with complicated topographies. This function appears to considerably enhance modeling accuracy and cut back the guide workload, which many G2 reviewers discover worthwhile.
Visualization capabilities are additionally continuously talked about in G2 opinions as a standout function. Customers recognize the device’s skill to supply clear, detailed representations of water floor profiles and move paths, making it simpler to current technical outcomes to stakeholders. These visuals appear to assist bridge the hole between complicated technical evaluation and real-world decision-making, a function that a number of reviewers discover particularly helpful when working with regulatory our bodies or non-technical audiences.

Nonetheless, many G2 customers have famous that the person guide could possibly be extra complete. Whereas on-line tutorials present useful steerage for novices, some reviewers point out that superior duties aren’t at all times absolutely coated. Enhancing the documentation might cut back the educational curve and make the software program much more accessible to new customers, although the prevailing assets nonetheless present strong foundational steerage.
One space that a number of G2 reviewers point out is error-checking and enter validation. Whereas the software program consists of helpful safeguards, verifying information accuracy generally requires guide effort. Automating extra of this course of might enhance effectivity for high-volume datasets, however the present system nonetheless helps keep dependable outcomes.
One other recurring problem that G2 customers spotlight is organising survey coordinates and integrating spatial information. Whereas the software program manages most eventualities successfully, some customers encounter minor points when aligning a number of datasets. Enhancing this integration might cut back inconsistencies, although for a lot of tasks, the prevailing performance works nicely.
Lastly, I’ve learn that a number of G2 customers really feel that whereas GeoHECRAS covers core hydraulic modeling wants, some superior options—like sediment transport and detailed groundwater interplay—could possibly be expanded. Enhancing these capabilities would higher help multidisciplinary water useful resource analyses, but the platform nonetheless gives robust efficiency for normal hydraulic modeling duties.
What I like about GeoHECRAS:
- One function I continuously see getting loads of reward is the georeferencing device. Customers spotlight its skill to align fashions precisely with real-world map coordinates, making certain spatial accuracy in flood danger zoning and infrastructure placement.
- One facet that stands out to me within the opinions is the mixing with GIS platforms. Many G2 customers recognize how easily information could be transferred between GeoHECRAS and GIS instruments, making certain consistency and decreasing errors throughout platforms.
What G2 customers like about GeoHECRAS:
“GeoHECRAS is superb for modeling drainage areas and sophisticated floodplains, with its integration of GIS and mapping options making it way more user-friendly than HEC-RAS alone. The power to import information from Google Earth and CAD streamlines the method, permitting you to consolidate present survey information and areas in a single place. This system is very intuitive, with instruments and options positioned precisely the place you’d count on them. Our staff makes use of it virtually each day, and when crashes or bugs happen, CivilGeo’s help is fast and useful.”
– GeoHECRAS Overview, Sarah Okay.
What I dislike about GeoHECRAS:
- I’ve seen that the person guide could possibly be extra complete. Whereas on-line tutorials present useful steerage, a number of G2 reviewers point out that superior duties aren’t absolutely coated, although the prevailing assets nonetheless supply strong foundational help.
- Verifying information accuracy generally requires guide effort, which I’ve discovered a bit time-consuming. A number of G2 customers have highlighted this as nicely, and automating extra error-checking might enhance effectivity, although the present safeguards usually keep dependable outcomes.
What G2 customers dislike about GeoHECRAS:
“Some facets of its 3D visualization might use enchancment. For instance, culverts designed with the 1D modeling strategy don’t show precisely within the 3D view inside a terrain.”
– GeoHECRAS Overview, Baylor W.
4. GeoHECHMS: Finest for numerous hydrological eventualities
GeoHECHMS is usually thought to be a extremely succesful device for stormwater modeling, particularly for analyzing complicated hydrological circumstances. Based mostly on my overview of G2 person suggestions, many reviewers share an appreciation for its flexibility and skill to deal with numerous stormwater design eventualities. Though I’ve not used it on lively tasks, customers persistently spotlight its potential to supply confidence in stormwater design throughout numerous landscapes.
A function that stands out within the opinions is the automated calculation of the curve quantity (CN). I’ve learn a number of G2 opinions praising this device for its skill to streamline the method by robotically figuring out composite curve numbers based mostly on land use and soil sort. This automation seems to avoid wasting a major period of time and considerably reduces the chance of errors, which customers discover invaluable of their duties.
One other facet that many G2 customers spotlight is the ease of evaluating stormwater eventualities facet by facet. Whether or not for pre- and post-development circumstances or testing totally different design choices, this function is continuously talked about as a approach to visualize potential impacts. I’ve seen that it’s particularly helpful when presenting design selections to stakeholders, because it gives a transparent and easy comparability of various outcomes.
From what I’ve gathered, GeoHECHMS’ integration with CAD and GIS platforms is one other standout function. The seamless alternate of knowledge between these programs eliminates the standard back-and-forth of file conversions, a degree typically praised in G2 opinions. Customers emphasize that this integration helps keep alignment between hydrological fashions and authentic design information, enhancing each effectivity and accuracy.

Nonetheless, G2 opinions additionally level out areas for enchancment. For instance, I’ve seen a number of customers spotlight terrain delineation on flatter websites as an space that could possibly be refined. Whereas the device is usually efficient, small variations could sometimes be missed, requiring minor guide corrections.
The guide watershed delineation is versatile, however working with closed polylines in CAD could be considerably tedious. Some customers recommend a extra intuitive drawing device to streamline this course of, although the present workflow nonetheless accomplishes the duty reliably.
One other function that might use refinement, in keeping with suggestions I gathered, is computerized subbasin delineation and time of focus (TOC) instruments. There are cases the place sure areas or junctions are neglected throughout the computerized delineation course of.
Enhancing these instruments might improve effectivity and cut back the necessity for guide changes, whereas the prevailing performance continues to deal with most typical eventualities successfully.
I’ve seen just a few reviewers point out the alert system for disconnected junctions, which serves as a helpful safeguard. Some customers really feel it could possibly be barely extra proactive, as modifications affecting mannequin connectivity aren’t at all times instantly flagged. Even so, the alert system successfully identifies points when triggered, and a extra responsive setup would merely improve an already useful function.
What I like about GeoHECHMS:
- Based mostly on my overview of G2 suggestions, I continuously see customers highlighting the automated curve quantity (CN) calculation. They recognize the way it robotically determines composite curve numbers, saving time and minimizing errors of their workflows.
- One facet that stands out to me within the opinions is the mixing with CAD and GIS platforms. Many customers reward how seamlessly the information alternate happens between these programs, which helps enhance effectivity and ensures consistency between the hydrological fashions and the unique design information.
What G2 customers like about GeoHECHMS:
“GeoHECHMS is constructed on a sturdy mapping system that helps a variety of file codecs, together with Environmental Programs Analysis Institute (ESRI), Autodesk, Gentle Detection and Ranging (LIDAR), and lots of others. Regardless of the complexity of the subject material, its interface is refreshingly simple, making it accessible to customers with out requiring intensive technical experience. This user-centric design units a excessive customary, and different software program distributors might study from how CivilGeo develops instruments tailor-made to end-users moderately than simply pc scientists.”
– GeoHECHMS Overview, Kenneth D.
What I dislike about GeoHECHMS:
- I’ve seen that the person guide could possibly be extra complete. Whereas on-line tutorials present useful steerage, a number of G2 reviewers point out that superior duties aren’t absolutely coated, although the prevailing assets nonetheless supply strong foundational help.
- Verifying information accuracy generally requires guide effort, which I’ve discovered a bit time-consuming. A number of G2 customers have highlighted this as nicely, and automating extra error-checking might enhance effectivity, although the present safeguards usually keep dependable outcomes.
What G2 customers dislike about GeoHECHMS:
“The event of fractional Possible Most Precipitation (PMP) rainfall distributions isn’t very intuitive. Moreover, together with higher watershed maps within the reporting output would considerably improve its usability and readability.”
– GeoHECHMS Overview, John G.
5. Civil 3D: Finest for street, grading, and utility design
Autodesk Civil 3D has lengthy been thought of an indispensable device within the civil engineering discipline, notably for its design automation instruments, similar to floor modeling, grading, and alignment creation.
From what I’ve seen in G2 opinions, customers continuously spotlight how these options automate repetitive duties, decreasing human error and liberating up time to deal with extra complicated facets, similar to design optimization and evaluation.
A function that persistently stands out in G2 opinions is its collaboration capabilities. Many customers point out how nicely Civil 3D integrates with different Autodesk instruments like AutoCAD and Revit, which appears important for groups working collaboratively on the identical venture in real-time. This interoperability is usually praised as a key energy, particularly with regards to seamless cross-tool workflows.
One other generally appreciated function is its help for industry-standard file codecs similar to IFC and LandXML. I’ve seen that customers typically point out how this help helps facilitate clean information sharing throughout totally different platforms, with out working into compatibility points. This appears notably necessary for bigger groups working with a various set of software program instruments, in keeping with G2 opinions. In line with G2 Knowledge, 91% customers worth its skill to import and export totally different file codecs.
A recurring theme in G2 suggestions is the integration of GIS options. Customers spotlight how linking design components with geospatial information enhances location-based analyses, similar to flood danger assessments and terrain modeling. This performance is especially helpful in infrastructure and website planning, because it allows customers to raised perceive the spatial relationships inside their designs.
From my overview of G2 suggestions, I’ve come throughout a number of reviewers mentioning the steep studying curve. Even skilled professionals point out that mastering the software program’s instructions and settings takes time, with many customers counting on on-line tutorials and boards. Based mostly on this suggestions, plainly enhancements in in-app documentation or contextual assist might drastically ease the educational course of for brand new customers.

By way of challenges, I’ve seen a number of reviewers point out the hatching device, notably when coping with dense or overlapping entities. Whereas practical, it might generally decelerate the ultimate drafting phases. Many customers have advised enhancements to its consistency, which might additional improve the drafting course of, although the device nonetheless performs nicely for normal use instances.
One other space highlighted within the suggestions is the customization of pointers and choice instruments. The default crossing field can really feel inefficient for giant or detailed drawings, and customers would profit from extra management over how they work together with design components. Even so, the prevailing instruments deal with most civil engineering layouts successfully, and enhancements would merely make them extra streamlined.
Lastly, I’ve seen loads of constructive suggestions surrounding Civil 3D’s pipe community design capabilities. Whereas customization could be tough at first, as soon as mastered, it gives wonderful precision and management over stormwater and sewer programs. Many G2 customers view this function as a standout functionality, demonstrating robust worth for efficient community structure and performance.
What I like about Civil 3D:
- I continuously see G2 reviewers spotlight the design automation instruments like floor modeling, grading, and alignment creation. Customers recognize how these options cut back human error and unencumber time for extra complicated duties.
- One thing G2 reviewers appear to actually recognize is the collaboration capabilities. Many customers name out the mixing with AutoCAD and Revit, making cross-tool workflows seamless for groups engaged on shared tasks in real-time.
What G2 customers about Civil 3D:
“This software program allows dynamic integration for my constructing and street tasks, permitting for practical displays with simply accessible built-in instruments and add-on choices that assist reduce prices and time. As soon as I create my library for BIM, it would profit all my tasks and make my work extra presentable to shoppers and engineers. It’s particularly tailor-made for civil engineering, with quite a few inbuilt options that make my work extra targeted and environment friendly within the discipline.”
– Civil 3D Overview, Sagar V.
What I dislike about Civil 3D:
- I’ve seen that the hatching device can battle with dense or overlapping entities. Whereas it really works for normal drafting, a number of G2 reviewers point out that enhancing its consistency would pace up the ultimate phases, although it nonetheless performs adequately for many duties.
- Pointer customization and choice instruments can really feel a bit limiting, particularly the default crossing field for giant drawings. A number of G2 customers have additionally famous this, and extra management would streamline workflows, although the present instruments deal with most civil engineering layouts successfully.
What G2 customers dislike about Civil 3D:
“Pipe networks could be tough to work with. There are a number of points, beginning with the show of pipes in profiles. The method isn’t very intuitive, and altering pipe slopes is a protracted and complex process.”
– Civil 3D Overview, Jeremy J.
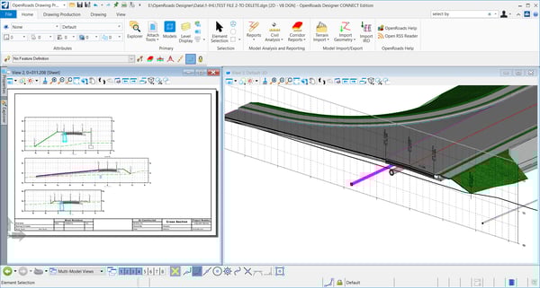
6. OpenRoads Designer: Finest for complete roadway design and evaluation
OpenRoads Designer stands out for its skill to simplify street and infrastructure design utilizing a model-centric strategy. Based mostly on my overview of G2 person suggestions, this strategy is continuously praised for enhancing collaboration and streamlining workflows, notably in giant civil engineering tasks. I’ve come throughout a number of reviewers who spotlight how this technique helps groups visualize and handle all the venture lifecycle extra effectively.
One thing G2 reviewers appear to actually recognize is the flexibility to work with clever fashions that embrace terrain information and detailed roadway or website options. From what I’ve seen, this gives customers with a extra complete understanding of complicated infrastructure programs. A number of opinions emphasize how this holistic design atmosphere contributes to raised venture planning and execution.
A persistently praised functionality is the integration of a number of information varieties inside a unified platform. Many customers on G2 spotlight how OpenRoads Designer helps survey, drainage, utilities, and roadway design in a single place—eliminating the necessity to toggle between separate instruments. This appears to cut back each workflow interruptions and the potential for inconsistencies throughout venture phases.
One standout functionality, in keeping with customers, is the flexibility to begin with real-world information and create georeferenced 3D fashions. This performance seems particularly worthwhile for freeway and website improvement tasks. I continuously see G2 reviewers point out that this results in extra correct and practical modeling, with rapid visible suggestions enhancing their management and confidence throughout design iterations.
One other function I see getting loads of love is the platform’s flexibility in dealing with each 2D and 3D deliverables. In line with suggestions I gathered from G2 customers, this adaptability helps the software program scale nicely throughout numerous infrastructure tasks. Whether or not groups are engaged on primary plan units or detailed 3D corridors, the device accommodates various ranges of complexity, which is particularly useful in multidisciplinary environments.
From what I’ve learn, the floor modeling and hall design instruments are thought of among the many most exact and controllable by way of modeling. Customers continuously name out their usefulness in refining alignments, grading, and cross-section improvement.

Nonetheless, I’ve additionally seen that some customers encounter minor challenges with floor creation, notably when restoring damaged hyperlinks or managing dependencies. Whereas these conditions can require additional consideration, the software program nonetheless gives strong core performance for many tasks.
Inspecting the broader overview tendencies, efficiency sometimes emerges as an space for enchancment. Bugs or undocumented modifications could trigger surprising habits, and model compatibility can complicate venture continuity. Even so, the platform usually performs reliably, and updates or cautious model administration assist keep clean workflows.
Lastly, based mostly on my overview of G2 suggestions, there’s a chance to reinforce coaching assets and onboarding help. Higher steerage for organising seed information and general orientation might make the platform much more accessible to new customers. Many reviewers be aware an preliminary studying curve, however as soon as acquainted with it, the software program gives robust capabilities for civil engineering workflows.
What I like about OpenRoads Designer:
- From what I’ve gathered in G2 opinions, customers recognize how OpenRoads Designer simplifies complicated tasks by integrating a number of information varieties in a single platform. This makes it simpler for me to collaborate with out switching instruments consistently.
- I’ve seen that many customers spotlight the worth of beginning with real-world information and creating 3D fashions. I can see how this strategy helps enhance accuracy and boosts my confidence within the design course of.
What G2 customers like about OpenRoads Designer:
“OpenRoads Designer gives an environment friendly answer for growing 3D fashions, robotically creating venture components in a 3D atmosphere as you’re employed. This lets you consolidate all venture parts, together with roadways, buildings, drainage networks, and utilities, in a single location. The detailed 3D fashions assist customers of all expertise ranges visually overview a venture for potential points and omissions. Civil cells allow the duplication of redundant design components, similar to entrances and pedestrian ramps. Merchandise Sorts can be utilized so as to add further metadata, similar to bid merchandise descriptions and specification notes, to components throughout the mannequin.”
– OpenRoads Designer Overview, Mike M.
What I dislike about OpenRoads Designer:
- I’ve seen that floor creation could be tough, particularly when restoring damaged hyperlinks or managing dependencies. A number of G2 reviewers additionally point out this, though the software program nonetheless handles core performance reliably for many tasks.
- Efficiency and model compatibility points can generally trigger surprising issues. A number of G2 customers spotlight this too, and whereas updates assist keep clean workflows, occasional refinements might enhance general stability.
What G2 customers dislike about OpenRoads Designer:
“Whereas this system provides huge capabilities, the earlier person interface used for creating venture document paperwork in OpenRoads Designer is extra cumbersome and closely reliant on menu bushes. Modifications made particularly for drawings can’t be simply migrated to the workspace for common use in different information, which provides additional complexity to the method.”
– OpenRoads Designer Overview, Glenn B.
Finest civil engineering design software program: continuously requested questions (FAQs)
Q. Can civil engineering design software program combine with different instruments?
Sure, many civil engineering design software program instruments can combine with different functions, similar to venture administration software program, BIM instruments, and CAD programs like AutoCAD, Revit, and STAAD Professional.
Q. Does civil engineering design software program help sustainability or inexperienced constructing design?
Many civil engineering design software program instruments incorporate options similar to vitality modeling, materials lifecycle evaluation, and environmental impression assessments, enabling engineers to design extra sustainable and energy-efficient buildings and infrastructure.
Q. Is coaching accessible for civil engineering design software program?
Sure, most civil engineering design software program suppliers supply coaching assets, together with on-line tutorials, webinars, and certification applications. Many additionally supply in-person coaching classes, person manuals, and neighborhood boards to assist customers enhance their abilities and navigate the software program effectively.
Q. That are the very best free civil engineering design software program?
Most civil engineering design software program instruments supply free trials, however only a few are utterly free. Some instruments, like Civil 3D, present restricted performance of their free variations, appropriate for smaller tasks or instructional functions. Discover free civil engineering design software program.
Q. What are the widespread challenges I might face with civil engineering design software program?
Widespread challenges with civil engineering design software program embrace a steep studying curve, particularly for complicated instruments, compatibility points with different software program, excessive prices for superior options, and the necessity for frequent software program updates or upkeep. Moreover, information administration and collaboration throughout totally different groups can generally be tough if the software program is not well-integrated with different programs.
Be sure there’s a strong basis
As structural engineer Invoice Baker, who led the design of the Burj Khalifa, as soon as mentioned, “Engineering isn’t just about making issues work, however making them work higher.” This mindset is strictly what the very best software program delivers—it’s not nearly assembly the fundamental necessities; it’s about enhancing how I’d need to strategy design, evaluation, and venture administration.
All through my journey of evaluating the very best civil engineering design software program, I’ve realized that the fitting instruments are way more than only a means to show concepts into blueprints. They empower customers to unravel complicated challenges in inventive and environment friendly methods, serving to them see past the apparent and strategy design with a contemporary perspective.
Civil engineering tasks fluctuate drastically in scope, complexity, and goals. Whether or not designing a towering skyscraper, a posh bridge, or a extra simple infrastructure venture, the wants and challenges differ vastly. That’s why it’s essential to discover totally different software program choices, completely consider their options, and select one which aligns with the particular wants of every venture.
Use the finest building estimating software program to streamline your budgeting and guarantee your tasks keep on monitor.
